
NOTE: This representation is based in whole or in part on data generated by the Chilliwack & District Real Estate Board, Fraser Valley Real Estate Board or Real Estate Board of Greater Vancouver which assume no responsibility for its accuracy.




Fantastic opportunity to own, live, and earn! This charming character home, located in the heart of Vancouver's vibrant Little Italy, has been thoughtfully updated with modern finishes. Offering 3 self-contained suites, including a turnkey Airbnb suite, this 3-level home provides significant income potential with a 10%+ cap rate. Recent upgrades in 2022 include new insulation, custom insulated windows, cut stone countertops, new cabinetry, fresh flooring, and paint throughout. Enjoy the convenience of private laundry, a fully fenced backyard, and secure gated entry. Located just steps from transit, SkyTrain, downtown, False Creek, Science World, Rogers Arena, and more. Perfect for urban living with exceptional income potential! **Open House Mar 16th Sun 2-4pm or call for a private showing*
About This Property
MLS #: R2966807
$1,700,000
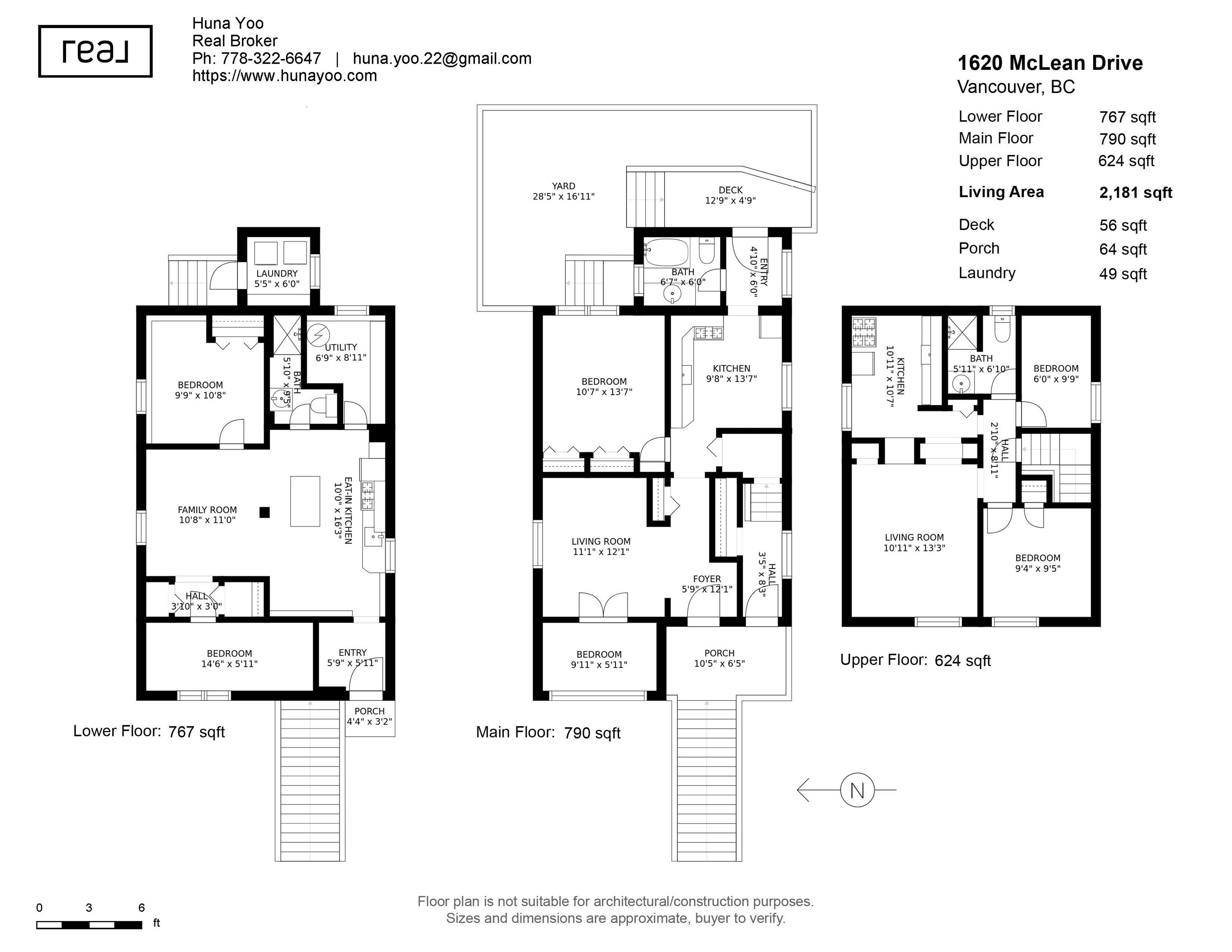
1620 Mclean Drive
Vancouver, BC V5L 3P3
Listing courtesy of: Real Broker
Interested? Request more info about this property:
Ready to check it out? Request a tour:
Additional Information
Approx. Year Built
1912
Status
Active
Title to Land
Freehold NonStrata
Maintenance Fee
$0
Price / SqFt
$779.46
Days on Market
300
Exterior Features
Style
2 Storey w/Bsmt.
Site Influences
Central Location,Private Yard,Recreation Nearby,Treed
Lot Size (Sq Mtrs)
170.01
Lot Size (Hectares)
0.02
View
View Details
Parking
None
Total Parking Places
0
Floor Levels
3
Interior Features
Total Bedrooms
6
Features Included
ClthWsh/Dryr/Frdg/Stve/DW
Half Baths
0
Full Baths
3
Amenities
Garden,Guest Suite,In Suite Laundry,Storage
Fuel/Heating
Forced Air,Natural Gas
Fireplaces
0
Basement Area
Fully Finished,Separate Entry
Location Details
Area
Vancouver East
Sub-Area/Community
Grandview Woodland
Region
-
6
Bedrooms
3
Bathrooms
2181
Sq. Feet
type
House/Single Family
$779
Per Sq. Feet
Mortgage Calculator
$5,660
Monthly Payment




address
$1,000,000.00 USD
beds
baths
sqft



